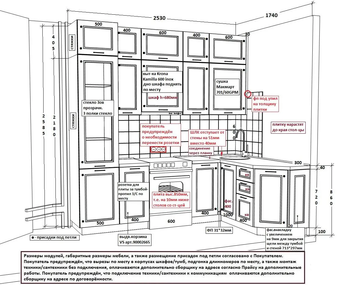
Кухня Мнк019
Выполненные проекты
- угловые
- Современный
Цена в базовой комлектации
198 000 руб.
Похожие проекты

